/
Archaeology




T.D. PANOVA
RESULTS OF ARCHAEOLOGICAL RESEARCHES ON THE TERRITORY OF THE MOSCOW KREMLIN IN THE 1990-2010S

Archaeological works of the 1990s let us make very interesting conclusions regarding ancient historical and social topography of the Kremlin's eastern part at the end of 12th–13th centuries. Although later development area had destroyed traces of residential and household buildings of that period, some of the remains were still studied. Many of them were ruined during fires, layers of which are preserved in very good condition and reported during the observations. One of the heaviest layers dates back to the first half of the 13th century and, undoubtedly, is connected to the ruination of a seized small town, which Moscow had been in 1238, by the army of Batu Кhan – grandson of Genghis Khan.

The square of Moscow at the upper terrace of the Borovitsky Hill was not more than 14 hectares at that time. (il. 2)

The eastern territory of the Moscow Kremlin. 1991-1995
A convenient way to invade the dirt and log fortifications of the town was from the 'field' side, namely from the East. Today this is the territory of Red Square and Kitay-Gorod, separated from the eastern part of the fortress by the high Kremlin wall. Despite quite simple dirt and log fortifications of the edge of the 12th–13th centuries, in February 1238, Muscovites managed to stand against Batu Khan's strong forces and defend the town for several days. Nevertheless, the final was clear to the besieged – two found treasures with silver jewellery prove it. The first one consists of more than 300 men's and women's jewellery and was, without doubt, in possession of Moscow Prince Vladimir Yurievich, grandson of Vladimir and Suzdal Prince Vsevolod of the Big Nest. The second one (found in 1991) belonged to someone from Vladimir's circle and contains only twenty art pieces of Old-Russian masters: decorations of women's headdress – massive six-rayed star-shaped kolts and three-bead temple rings as well as braided torques, medallion, beads, bracelets and seal-rings. (il. 3–6)

Il. 4. A torque of Kyiv type. Ancient Rus, the 12th century Silver
Il. 3. Six-rayed kolts-pendants. Ancient Rus, the end of the 12th century. Silver. Come from the Big Kremlin Treasure
Il. 6. A wide two-fold bracelet. Ancient Rus, the end of the 12th century. Silver
Il. 5. A necklace with round pendants and beads. Ancient Rus, the end of the 12th century. Silver
The significance of these two troves cannot be overestimated. Their place marks the part of the fortress of the first half of the 13th century, where the courts of the peerage had been placed. The content of the treasures allows mentioning the Russian towns, in whose workshops many of the found jewels were created. These are the capitals of large princedoms - Vladimir, Kyiv, Ryazan. In Moscow of that time, the gold work was less developed, and local masters worked mainly with simple metals (bronze, copper) for the needs of ordinary people. Gifts exchange with ambassadors, military campaigns and commerce supplemented the treasury of Vladimir princedoms with items of a Varangian circle, the Kama region, Volga Bulgaria, and the Middle East.

Conclusions regarding the place, where prince court and rich manors were situated at the end of the 12th–13th centuries, is confirmed by other findings, which reflect the daily routine of Moscow high society. Among other things, rare glass tableware, made in Kyiv, Byzantium and Syria, was uncovered. Olive oil and vine for the rich people and church needs were imported from Mediterranean countries in amphorae (il. 7) Fragments of big pottery vessel with pasted relief ornament in the shape of the diagonal net (il. 8) became a unique finding in the Kremlin. This vessel comes from Persia - similar jugs were made in the ceramic workshops of Ray. All these high-priced items were imported to Moscow as a result of transit trade, mainly through Kyiv territories.

Il. 1. Scheme of archaeological state of exploration of Kremlin cultural layer in 19592001. Authors I.I. Kondrat'ev, T.D. Panova
Il. 2. Reconstruction of fortress planning at the end of the 12th century – 1238.
Authors I.I. Kondrat'ev, T.D. Panova
Il. 7. Fragment of big tare vessel (amphora). Byzantium, early 13th century. Clay
Il. 8. Fragment of big tare vessel with a diagonal net as an ornament. Persia, early 13th century. Clay
Apart from this evidence in the cultural layer of Kremlin's eastern part, there were also findings telling about the life of the common and handicraft population of ancient Moscow. Here lived and worked masters, who created wooden tableware and hardware, objects made of animal bones and horns, as well as those, who worked a far-brought amber from Kyiv suburbs, or those who sewed leather footwear (only shoes at that period of time) and made threads for fabrics at home. These activities are proved by wooden plates, turned on the lathe, wastes of the brass foundry, bone offcuts and parts of bone handles and knives, instruments, pieces of raw amber (il. 9), chips, leather offcuts, examples of footwear (il. 10), spindle whorls. The latest was made only in Ovruch, not far from Kyiv, to increase the weight of spindles while twisting the threads.
Il. 9. Amber. Photography. 1995
Il. 10. Shoe. The 12th century. Leather
Thousands of crockery fragments let us reconstruct the shapes of kitchen pots and tableware of the late 12th–13th centuries, multiple remains of animal bones – the composition of meat and fish ration of ancient Muscovites. Thus, the meat ration of the Muscovites hardly differed from the current one – it contained meat of cattle and small ruminants, pork, and domestic poultry. The more interesting is the assortment of wild-caught fish that used to live in the rivers Moskva and Neglinnaya.
Ichthyofauna researches revealed sixteen kinds of fish (il. 11), which remains had been found during archaeological observations in 1994–1995. Among them, there are sturgeons, such as sterlet, Russian sturgeon, stellate sturgeon, huso, that belong to migratory fish, as well as Caspian salmon, which migrated along the Volga through the Oka to the Moskva River. As one of the findings, the huso bones are of special interest. According to them the size of the example was determined about 3.5 meters, while the weight reached 120 kilos! Among common to local water basins types of fish, there are pike, catfish, three types of carp(bream, tench, wild carp), three types of perch(perch, pike, ruffe) as well as chub and roach. The remains of salmon trout from the cultural layer of the 13th century, found in the residential area of Moscow for the first time, excited much interest among the specialists. This fish is a direct indicator of fine ecological situation in the basin of the Moskva River in the past. In the 13th century, it used to be affluent, with clean, no-silted, vast pebble and sand parts of the bottom. Besides, its shores covered thick forests that protected the waters from pollution.

Il. 11. Types of fish from the layers of the 12th16th centuries in the Moscow Kremlin. Drawing.1997. Author E.A.Tsepkin
objects as glass beads and table vessels. A so-called 'bracelet' layer reached 1.5 meters (up to 1.8 meters) at the hill cape (current place of the Armoury Chamber) and in its central part (by Troitskie Gate and near Patriarch's Place and Assumption Cathedral), whereas its thickness in the eastern part of the Kremlin did not exceed one meter. This conclusion of the Museums archaeologists was confirmed during the excavations of the 2015–2018s, accomplished by specialist of the Institute of Archaeology of the Russian Academy of Science.
Studies of the grain accumulation, found in the eastern part of the Kremlin in the 1990s, made it possible to reveal the types of domestic plants which ancient Muscovites cultivated along the shores of the Neglinnaya River. At that time, a ploughshare for soil cultivation was also found. Most often the archaeologists found grains, cultivated at the end of the 12th–13th centuries (and up to the 15th century!), in the burnt household buildings. It emerged that the plants were grown close to the Borovitsky Hill, where the Moscow State University on Mokhovaya street is now situated, and consisted of rye, wheat, oat, barley, buckwheat, millet, peas, and hemp. The grains were used to bake the bread – the main product on the tables of Muscovites, and also for porridges and kissels. As a sugar substitute, people made treacle – a thick sweet syrup, which was poured down apples, pears, cherries, and plums, and conserved them for wintertime. The treacle was made out of barley, wheat, and rye malt. A medieval desert was natural and healthy. The hemp was grown for technical needs, for example, the ropes were made out of its fibres, while the oil was pressed for cooking. Sometimes it is surprising how such a worthless, for the first glance, archaeological material can be so informative.

As time passed, the type of buildings in the eastern part of the Kremlin changed. Prince court and rich manors were shifted to a more secure part of the Borovitsky Hill closer to its cap - the place, where the Grand Kremlin Palace now stands. In the second part of the 14th – beginning of the 15th century, the main territory by the Spasskie Gate occupied two monasteries – women's Voznesensky Monastery (1407) and men's Chudov Monastery (1365). On the territory, where the monasteries and large merchants' manors were situated, the archaeologists of the Moscow Kremlin Museums found many precious objects, including valuable painted glass cups of the 15th century from Italy, eastern fritware with polychrome ornament under transparent glaze and Chinese porcelain (il. 12–13). Items of Chinese ceramic masters are very rare in archaeological collections of Russian cities. In Moscow, almost all fragments of porcelain cups and plates of the late 14th–15th centuries were found on the territory of the Kremlin. It is no wonder since it was that very place, where secular and church authorities lived at that time.

Il. 12. Fragments of glazed ceramics. Lower Volga region, the 15th сentury. Kashin; glaze
At the same time, the archaeologists located the remains of burnt smithies of the late 14th –beginning of the 15th centuries closer to Nikolskie Gate. There is no doubt that they were connected to the building on the Borovitsky Hill in 1366–1368 the first white-stone fortress. Such work demanded a large number of metal tools (il. 14).
Il.15. Kremlenagrad. Amsterdam, the 1660s. Paper; engraved copper plate, watercolours. Detail; Church of Kuz'ma and Dem'yan
Il. 16. Part of the gravestone of early 15th century from the cemetery by the church of Kuz'ma and Dem'yan. Photography. 1995.
Apart from that, jewellery works were also found here. Finally, these findings made it possible to understand why the church of Kuz'ma and Dem'yan had been situated at this very place of Moscow fortress. These saints were doctors but somehow became patrons of smiths in Ancient Rus. During archaeological observations in the 1990s, the following findings were reported: building layers of the church of Kuz'ma and Dem'yan, several burials of the second half of the 14th–15th centuries in its cemetery (il. 15), and fragments of gravestones with stripes and large set-in isosceles triangles as an ornament. These gravestones are the earliest from the cemeteries of medieval Moscow (il. 16).
Il. 14. Part of the smithy and fragments of smith hearth of the 15th century, found near the church of Kuz'ma and Dem'yan in the Moscow Kremlin (findings marked with M). Draft. 1996. Author T.D. Panova.
It is important to note that, in course of observation of the 1990s, the north-eastern border of white-stone Kremlin was discovered nearby the Nikolsky Gate (built in the late 15th century). According to the project of Italian architects, who built the brick fortress, its square was enlarged thanks to the wall, built on Neglinnaya riverside. By contracts, the walls of the white-stone Kremlin at the times of the Grand Prince Dmitry Donskoy stood above this river – on the brow of the upper terrace of the Borovitsky Hill. Thus, archaeological researches confirmed the data, known from the Russian chronicles (il. 17). It was determined that the territory by the Nikolskie Gate started to develop only by the end of the 15th century; nothing of an earlier period was found here. Thereby, the new data regarding the history of the white-stone Kremlin, which had a weak reflection in written sources and only partially in archeological materials, were collected during the research.
During the works of the 1980–1990s on the territory between Spasskay and Niloskaya Towers, the archaeologists of the Moscow Kremlin Museums found out that Muscovites started to subdue the territory of the upper terrace above the flood plain of the Borovitsky Hill at the end of the 12th century, i.e. later than its central or cape parts. The thickness of the layers with objects of material art of the late 12th–mid 13th century is lower than of the other territory of the upper terrace of the Borovitsky Hill. Primarily, this fact was confirmed by studying the fragments of such representative and

Il. 17. Moscow fortress of the second half of the 14th century. Reconstruction of fortifications and topographical relief. 2003. Authors I.I. Kondrat'ev, T.D. Panova
Il. 18. Church of the Savior in the Woods and the Terem Palace in the Kremlin. M.F. Damam-Demartre. Early 19th century. Paper; aquatint
Il. 19. Remains of the western wall basement of Transfiguration of the Savior Cathedral. Photography. 1997
Cathedral Square and the Grand Kremlin Palace. 1996-2001
In the late 1990s–early 2000s, the archaeological observations shifted to the central part of the Kremlin – to the Cathedral Square and the Grand Kremlin Palace – as a result of repair and restoration works of Kremlin monuments during these years. In 1997 the court of the Grand Kremlin Palace was under research that allowed studying a basement fragment of the narthex western wall of Transfiguration of the Savior Cathedral and the territory of the most ancient Kremlin monastery, known from the first half of the 14th century. The Transfiguration of the Savior Cathedral belonged to the monastery. The thickness of the residential layer did not exceed here 2.9 meters (il. 18, 19).
Unexpectedly, it was not replete with household items; neither products' wastes nor remains of the wooden building, common to the monasteries with their specific way of life and few residents, were found. During the observations, the white-stone carved details of 1330 were reported. They belonged to the ancient cathedral and were shifted to the basement masonry during the reconstruction at the beginning of the 16th century. Apart from that, the archaeologists found two burial sites, disturbed at the beginning of the 20th century, and human remains, collected during the construction works in the early 1930s. Several artefacts of the 13th century, i.e. bronze bracelet with dragons' heads (il. 20) and fragments of clay amphorae from Byzantium were found in the cultural layer of this part.
Il. 20. Bracelet. Ancient Rus, early 13th century. Bronze. Ends in the shape of dragons' heads partially broken
The main observations of the archaeologists in early 2000s were connected with the southern part of the Cathedral Square, where Archangel and Annunciation Cathedrals are located. The thickness of the cultural layer near the western and southern walls of Archangel Cathedral did not exceed two meters, while under the northern gallery of the Annunciation Cathedral it amounted only to 1.3 meters. One should note that in 1913 the level of the Cathedral Square was lowered down by 70 centimeters. The cathedral socles were cleaned from the accumulated earth deposits due to construction works in Kremlin, timed to the 300th anniversary of the Romanovs dynasty. Nevertheless, the territory, where the Archangel Cathedral is situated, gave a number of interesting troves. In 1996 and 2000 here were found artefacts of different historical epochs. The first surprise became the fragment of the stone axe of the Fatyanovo – Balanovo culture, the end of the 2000 B.C. (il. 21). It was made of dolerite – a stone of volcanic origin, a kind of basalt. Currently, the archaeologist did not much succeeded in finding traces of the Bronze Age settlements on the territory of the Borovitsky Hill. However, the settlement of the early Iron Age (1000 B.C.) presented us again a number of pottery fragments of the Dyakovo culture (il. 22), which was found both inside the temple and close outside. This can be explained by the fact that the layers of the ancient city were dislocated due to the building of two cathedrals – in 1333 and the first years of the 16th century.
Studies of thickness and character of the cultural layer in the southern part of the Cathedral Square showed no traces of early residential building. The Archangel and Annunciation Cathedrals partially stand on the remains of ancient earth rampart that lined the edge of the Borovitsky Hill above the Moskva River. The Cathedral Square was used for church and state ceremonies from the early days. Building of churches and decoration of the Cathedral Square began in the first third of the 14th century. These facts explain the absence of residential and household buildings within its boundaries.
Only a few objects of medieval times were found near the Archangel Сathedral (il. 23), such as a key from the padlock of the 13th century, fragments of amphorae and ceramic slabs of the 14th century from the cathedral floor. It is significant that during observations in 2001, only artefacts of the 16th–17th centuries were reported by the southern wall of the cathedral. Tile fragments of different shapes and triangular floor slabs, covered with yellow, green and brown glaze, were preserved in the layer of debris. Such glaze was common to decoration details and church floors in the 16th century. Here were also found white-stone carved details of early 16th century, ripped off the façade during its repair in the 18th century, as well as fragments of red-clay resonators and bronze signet ring of the 18th century that belonged to a falconer (il. 24–27).

Il. 21. Ax-hammer. The end of the 2000 B.C. Dolerite
Il. 22. Fragment of the vessel of the Dyakovo culture. 1000 B.C. Clay
Il. 23. Excavation works by the southern wall of the Archangel Cathedral. Photography 2001

Il. 25. Parts of the red-clay resonators from the Archangel Cathedral. Photography 2001

Il. 24. White-stone decoration detail from the Archangel Cathedral. Photography 2001

Il. 27. Impression of the signet ring (the 17th century) with the image of a falconer. Photography 2001
Il. 26. Fumed jug, gathered from the fragments, and found near the Archangel Cathedral in 2001. Photography 2001
Plain at the foot of the Borovitsky Hill. 2007

In 2007 there appeared an opportunity to make excavations in the eastern part of the riverside plain at the foot of the Borovitsky Hill. The plain is not far from the Moskvoretskaya Tower, by the western and eastern gable façades of the outbuilding, erected in 1988. The total square of the territory under research was above 700 square meters. The most significant and large-scale archaeological excavations, ever made in Moscow's ancient region, were held together by the Moscow Kremlin Museums and Institute of Archaeology of the Russian Academy of Science. The historians have already had information about the geological structure of the Borovitsky Hill and its surroundings; they also knew the character and filling of the cultural layer of the plain (il. 28). The archaeologists of the Moscow Kremlin Museums supposed that active territory development had begun not earlier than the 14th century when the white-stone fortifications were erected by the Moskva riverside during the rule of Grand Prince Dmitry Donskoy. For the first time, the stone fortress defended the low plain from the river overflow and allowed living permanently within its walls. The excavations of 2007 at the riverine site of the Borovitsky Hill revealed a part of the Kremlin with buildings of the end of the 13th–16th centuries and residential layer with thickness up to 10 meters, rich with various objects of the material culture of that period as well as earlier epochs – Bronze and early Iron Ages.
Il. 28. Part of the riverside plain at the foot of the Borovitsky Hill with data regarding relief and level of the continent. Reconstruction of the south-west fortress ricetto during the rule of the Grand Prince Ivan Kalita (before the excavations of 2007). 2007. Author I.I. Kondrat'eva
The collection of ancient items of the Museums' archaeological fund was enriched with the flint head of arrow in perfect condition (the second half of 2000 B.C.)(il. 29), and fragments of ceramic vessels of the Dyakovo culture (the second half of 1000 B.C.). During excavations, there was revealed a rugged relief of the Moskva River floodplain with a continental residual hill, on the sides of which the building was developed during the Middle Ages and early Modern Period. Significant humidity of the soil and rugged relief did not stop the first residents of the plain to inhabit even these inconvenient places. Along the square of excavations of 2007, under the layer of the 18th–20th centuries' debris, there were found and reported the remains of more than 130 living houses – both ground-based and with cellars, as well as the
household buildings, stockades, and street paving (il. 30). The cellars were preserved in the majority since most of the ground-based living houses had burnt. For the first time, six manors on the territory of the Kremlin were studied from their development till change throughout four centuries, starting from the end of the 13th century.
The significant collection of archaeological artefacts of 2007 includes 3000 various items that allow reconstructing the material culture of the Russian medieval city (il. 31–38). Among the everyday items, there were found iron keys and locks, knives and wooden spoons, leather bags and covers for axes and spoons, chess figures out of wood and horn, fragments of glass tableware from Western Europe and the East, intact Hanseatic tin beer mug, metal and glass signet-rings and rings, stove tiles, fishing hooks and clay weights for the nets, copper and silver coins, glass inlays for signet-rings and part of the jewellery crucible to smelt non-ferrous and precious metals, clay toys – figures of horses and bears, bird-whistles, leather shoes and boots(not only details, but entire samples), decorated leather sheath, wooden mallets, barrel bottoms, dasher for butter whipping, and so on.

A leather rufter-hood for the hunting bird and other details of the equipment for such kind of hunting became a rare finding (il. 39).

Il. 29. Flint head of an arrow. 2000 B.C. Published for the first time
Il. 30. Cellar of a living house, the end of the 15th century. Photography. 2007
Il. 31. Wooden comb. Photography. 2007
l. 32. Iron key. Photography. 2007
Il. 35. Leather cover for a wooden spoon. Photography. 2007
Il. 36. Leather and bast shoe. Photography. 2007
Il. 34. Wooden ladle. Photography. 2007
Il. 33. Wooden dasher for butter whipping. Photography. 2007
Il. 37. Chess figures. Photography. 2007
Il. 38. Children's toys made of clay. Photography. 2007
Il. 39. A rufter-hood for the hunting bird. The end of the 14th century. Leather
Collection of the findings possesses also the objects of military daily routine (il. 40) and church attributes, such as baptismal and pectoral crosses, chest icons, stamps to produce monks' belts (il. 41–42).
A formidable part of findings became 100 000 fragments of different ceramic items. Among them, one can highlight fragments of imported glazed vessels from the Golden Horde, China (the 14th century), and Iran (the 15th–17th centuries). For the first time, a fragment of Turkish glazed tableware with red background for painting was found on the territory of Ancient Rus (il.43).
Il. 40. Iron head of a military arrow. Photography. 2007
Il. 41. Small glass icon. Photography. 2007

Il. 42. Baptismal cross. Photography. 2007

Il. 43. Fragment of glazed tableware. Turkey, the 16th century. Clay; glaze
Above that two birchbark manuscripts were first-ever found on the territory of the Kremlin in 2007. One of them dates back to the edge of the 14th–15th centuries (il. 44) and the other is from the 16th century. The earlier manuscript, written in ink, is of special interest since it has important information about the household of one of the plain's residents, named Turabey. He and his ancestors left a trace in the historical topography of the Moscow region. In the future, the reconstructions of plain's topography in the Middle Ages, both graphical and computer-assisted, will give an opportunity to illustrate the history of populating and development of this region of the Kremlin, where an ancient church of Constantine and Helena had dominated.
Il. 45. Birchbark manuscript. Edge of the 14th15th centuries
Necropolis of the Ascension Cathedral of the Moscow Kremlin. 20002020
In 2000 the archaeologists of the Moscow Kremlin Museums initiated the project studying burials of Grand Princesses and Tsarinas in the necropolis of the Ascension Cathedral. The burials date back to the 15th–early of the 18th centuries. The Kremlin hosted also other cathedrals with shrines of the nobility, some of which preserved till nowadays, such as the Assumption Cathedral – the shrine of the Russian metropolitans and patriarchs of the 14th–17th centuries, and the Archangel Cathedral – the shrine of the Russian grand and apanage princes and tsars of the 14th– early of the 18th centuries. Their repose was not disturbed even during the 1917 Revolution and after the USSR was established. Different fortune was destined to the Ascension Cathedral, which used to be a burial place of the women from the ruling dynasties of Moscow for more than four hundred years of Russian history.
Women's Ascension Cathedral located in the Kremlin near the Spassky Gate in the 15th–first third of the 20th centuries. During an active line of the soviet power against the church, it was dismantled and a military school of VTsIK was built on its place in the 1930s. Later, the Kremlin theatre had been working in this building till the beginning of the 1970s, and after that, a commandant's office of the Moscow Kremlin had located here till the year 2015, when the building was demolished. In autumn 1929 the employees of the Moscow Kremlin Museums managed to save from destruction the white-stone sarcophagi with the remains of the Russian grand princesses and tsarinas. Initially, they were taken to the Archangel Cathedral and then shifted to the underground chamber of the end of the 15th century, situated by the southern wall of the cathedral. Archaeologists, anthropologists, forensic experts, biologists, paleographer, chemists, entomologists, microbiologists, and specialists of other branches of science from different institutes of the Russian

Il. 46. The Ascension Cathedral. Photography. The end of the 19th century.
Academy of Science and major museums of Moscow took part in the project, studying the burials of the prestige women's necropolis of the Ascension Cathedral. The researchers studied the bone remains and restored the funerary inventory – shrouds, secular clothing and footwear made of fabrics and leather, monastic attributes out of fabrics and leather. During the research, the analysis of glass ritual vessels was carried out, and the texts of epitaphs on the white-stone covers of sarcophagi were defined.
Field studies of the burials were being undertaken in the 2000–2004s, the materials research and restoration works had been lasting till 2012. In the 2009–2018s three volumes of materials and researches, devoted to the burials of the Ascension Cathedral, were published and received much acclaim by the Russian, West-European and American scientists, historians and anthropologists (il. 47).
The main goal of the project was to study the mortuary ceremony in Ancient Rus during the Middle Ages. The materials, found in the necropolis, gave an opportunity to define its idea and reconstructing it more thoroughly. We shall especially note, that in the Russian mortuary culture of the Middle Ages and early Modern Times the dead body has never been embalmed; the orthodox tradition did not allow the preservation of the dead body from putrefaction.
The sarcophagi for the Russian grand princesses and tsarinas were made of the monolith white limestone (il. 48). Their shape differed by time. In the 15th–first half of the 17th centuries the coffins had an anthropomorphous shape, where the body, wrapped in a silk shroud, was placed. The sarcophagi of the second half of the 17th–early of the 18th centuries were shaped as a rectangular box, and the body was placed there in the wooden coffin. The bodies of the noblewomen were totally wrapped in a shroud, the faces closed with special fabric kerchief. In the burials of the 16th– early of the 18th centuries some items were preserved good enough, for example, dresses, monastic vestments, samples of special mortuary leather footwear, velvet shoes, silk pillow and small purses. Fabrics for the secular clothing of the women from the grand princes' and tsars' families of the Moscow ruling house were bought mainly in Europe. Italian silk was especially popular (il. 49); the wool fabrics with rough texture were used for the vestments of grand princesses-nuns and were produced locally. According to the burial materials, grand princesses and tsarinas wore floor-length gowns with very long sleeves. The headdresses of the 15th -17th cc. were also found in the burials of the shrine in the Ascension Cathedral. Such headdresses were called 'volosniki', and married women wore them, hiding the hairdo.

Il. 47. The book cover: Necropolis of the Russian grand princesses and tsarinas in the Ascension Cathedral of the Moscow Kremlin. Materials of the research. 4 volumes. Volume 2. Burials of the 15thearly 16th centuries / Editor-in-chief T.D. Panova

Il. 48. White-stone sarcophagus of Grand Princess Eudokia Donskaya, early 15th century. Drawing. 2010. Author T.D. Panova

Il. 49. Shroud of the Tsarina Marfa Vasilievna (Sobakina). Tracing of a pattern. 2004. Author O.V. Orfinskaya

Il. 50. Nun's belt from the burial of Grand Princess Eudokia Donskaya. 1407. Leather; embossing.

The necropolis also had nuns' burials since, in certain cases (usually after the husband's death), grand princesses and tsarinas took the monastic vows. However, such burials are few – only six. One shall note a leather belt of nun Euphrosyna – Grand Princess Eudokia, who died in 1407 (il. 50). It is decorated with images of twelve main Christian feasts – the Baptism, the Rising of Lazarus, the Entrance into Jerusalem, the

Resurrection and others. The materials of the necropolis showed that noblewomen did not take the monastic vows just before death. An interesting detail of the burial tradition in Ancient Rus was the placing of ritual vessels, found almost in all sarcophagi with the remains of the mature women. After the last rites were read in the cathedral, the chrism was sprinkled over the body, and chrism remains were placed in the coffin in the vessel (made
of metal or glass in the 16th–17th centuries). The rarest and beautiful glass vessels were produced in Europe (il. 51).
Il. 51. Vessel from the burial of the first Tsarina Marfa Vasilievna (Sobakina). Western Europe, not later than 1571. Glass; inflation, painting with coloured enamel, gilding

Anthropological researches present an important section of the project, studying the necropolis of the Ascension Cathedral. Studying of women's remains of the 15th–early 18th centuries made it possible to reconstruct their physical parameters and identify pathologies (il. 52). Here are some results of these studies as an example.
Il. 52. Bone remains of the Tsarina Maria Nagaya, the sixth wife of Tsar Ivan the Terrible. Photography. 2013
The second wife of the Moscow Grand Prince Ivan III (1440–1505) was Sophia Paleolog, niece of Emperor Constantine (born between 1443–1449, died in 1503). During the research of her remains, an osteochondrosis of the lumbar spine was revealed. When the princess's visage was reconstructed, there were found bone overgrowths inside the frontal bone of her skull, which allowed stating that she had suffered from hyperostosis. Thus, a serious hormone disruption in the princess' organism was identified.
The grandson of Ivan III Grand Prince Vasily III married Grand Princess Elena Glinskaya of Lithuanian origin. Mother of Tsar Ivan the Terrible died in 1538 aged about 35. Her quite tall for the Middle Ages height (165 cm) can be explained by one extra vertebra (6th) in the lumbar part of the spine, which was found during the research. The reason for her early death was also identified: Elena Glinskaya was poisoned by mercury salts or mercuric chloride – one of the most 'popular' poisons in medieval Europe. The same poison became the reason for the early death of another woman – Tsarina Anastasia, the first wife of Ivan the Terrible. She died in 1560 aged about 25–27.
Another important direction of the project, studying the necropolis of the Ascension Cathedral, was the reconstruction of an image of the Russian medieval women according to the ancient remains, whereas secular pictorial art appeared in Russia, unlike Europe, only in the late 17th century. For the current moment, such a method helped to reconstruct sculptural portraits of seven grand and apanage princesses and tsarinas. Now we know how they looked like: Eudokia Donskaya (wife of Grand Prince Dmitry Donskoy), Sophia Paleolog (the second wife of Grand Prince Ivan III)(il. 53), the last Grand Princess Elena Glinskaya (il. 54), elderess Anastasia (died in 1579) – mother of the first Russian Tsarina Anastasia, Tsarina Irina Feodorovna (died in 1603) – sister of Boris Godunov.
One of the child's portraits was also reconstructed. It was a girl, named Maria Staritskaya (il. 55), a first cousin once removed of Ivan the Terrible. She died at the age of 9 together with her parents in 1569. They were poisoned by the order of Ivan the Terrible during the acute struggle of dynasties at the Russian court. A study of the girl's remains showed that she had suffered from rickets that had affected the state of her musculoskeletal system.

Il. 53. Sculptural portrait-reconstruction of Grand Princess Sophia Paleolog. 1994. Gesso; moulding, toning. Author: S.A. Nikitin
Il. 54. Sculptural portrait-reconstruction of Grand Princess Elena Glinskaya. 2010. Gesso; moulding. Author: S.A. Nikitin
Il. 55. Sculptural portrait-reconstruction of Apanage Princess Maria Vladimirovna Staritskaya. 2004. Copper; forming. Author: S.A. Nikitin
The project, studying the necropolis of the Ascension Cathedral, made the researchers turn to an insufficiently explored theme in native historiography that is the life history of noblewomen, their place and their social role in the Middle Ages. For this reason, a block of materials regarding each burial contains a biographical essay about a particular grand princess or tsarina. Life of many of them became an object of thorough research for the first time. This long-term and important research has no analogues in the Russian historical science, and its results have already become a sufficient contribution of the employees of the Moscow museums and institutes of the Russian Academy of Science to the studies of Russia's past. In 2020 the last (4th) volume of research materials of the Ascension Cathedral necropolis in the Kremlin will be ready for publishing. It is devoted to the results of studies, relating to the burials of the 17th–early 18th centuries
The necropolis of the Archangel Cathedral of the Moscow Kremlin. 2007
In 2007 part of the metal covers of the early 20th century, set on the brick gravestone above the tombs of the 14th–early 18th centuries in the Archangel Cathedral, were restored. At the same time, Patriarch Alexis II of the Russian Orthodox Church addressed the Moscow Kremlin Museums with a request to withdraw a particle of the relics of Grand Prince Dmitry Donskoy. The management of the museum decided to time this event to coincide with the above-mentioned works. T.D. Panova was appointed to guide the necessary studies.

The tomb of the prince-warrior, who died on May 19, 1389, at the age of 38, is situated in the second row by the south wall of the Archangel Cathedral. Just by the cathedral wall his father, Grand Prince Ivan Ivanovich the Red (died on September 13, 1359), was buried. Northwards to the tomb of Dmitry Donskoy the Apanage Prince Dmitry Zhilka was buried; he died on February 13, 1521. He was the son of Grand Prince Ivan III and the Greek Sophia Paleolog. When the metal glassed-in covers were taken away, the brick monuments with epitaph plates, fixed on the west side, were revealed (il. 56).

Il. 56. Grave-stones above the tombs of Ivan II the Red, his son Dmitry Donskoy and Apanage Prince Dmitry Zhilka. Photography. 2007

During the research of the burials, it turned out that the tomb of Dmitry Donskoy was overlapped by a platform, made of one row of the brick, and a brick-lined white-stone sarcophagus of trapezium shape stands upon it (il. 57). It occupied almost all space of the grave-stone and totally overlapped the access to the coffin with the remains of Dmitry Donskoy beneath. When did it happen and what was the reason for it?

During the research of the burials, it turned out that the tomb of Dmitry Donskoy was overlapped by a platform, made of one row of the brick, and a brick-lined white-stone sarcophagus of trapezium shape stands upon it (il. 57). It occupied almost all space of the grave-stone and totally overlapped the access to the coffin with the remains of Dmitry Donskoy beneath. When did it happen and what was the reason for it?
In 1863–1864 a heating system was arranged in the Archangel Cathedral that had been cold before. At that time an air duct was set along the south wall of the cathedral, where the mentioned burials had abutted upon the wall. Due to these works, the burials were slightly disturbed. This is the reason, why the State Historical Museum has in its funds objects from the sarcophagi of Dmitry Donskoy (ritual glazed vessel made of clay) and Prince Andrey Ivanovich, son of Ivan Kalita (fragments of shroud fabric). The documentation of these building works in the 1860s has not remained, but the presence of these objects in the museum's collection witnesses the invasion of the medieval burials.
A white-stone sarcophagus, found on the grave-stone above the tomb of Dmitry Donskoy, belongs without doubt to his father, Grand Prince Ivan the Red. When the heating system was arranged, it was taken from the grave by the south wall and installed upon the neighbouring tomb of his son. This has made access to the remains of Dmitry Donskoy more complicated. The directorate of the Moscow Kremlin Museums decided to stop the research works, report the location of burials, opened during the dismantling of the grave-stones, and then reconstruct them without opening of the accessible sarcophagi. As a result, only outer parameters of the sarcophagus of Grand Prince Ivan the Red and caps of sarcophaguses of Apanage Prince Dmitry Zhilka as well as a dimension plan of their location were studied; further research was not conducted.

Il. 57. The white-stone sarcophagus of Grand Prince Ivan the Red on the tomb of his son Dmitry Donskoy. Photography. 2007

Conclusion

Starting from 2015 the archaeological research on the territory of the Moscow Kremlin is being held by the employees of the Institute of the archaeology of the Russian Academy of Science. These works are connected with the east part of the fortress and the south margin of Ivanovskaya Square. The excavations gave an opportunity to receive thorough information regarding the character and fullness of the living layer of early Moscow (the late 12th–13th centuries), and to study the full thickness of cultural layers in particular pits up until the 19th century.
Special studies of ancient deposits and the collection of findings relating to the material culture of the Russian Middle Ages have significantly enhanced historians' insight into the everyday and household activities of ancient Muscovites and their spiritual life.
The data, acquired during archaeological excavations of 2015–2017s, do not contradict the conclusions of the archaeologists of the Moscow Kremlin Museums made on the basis of only small-area observations of 1980–1990s.
Extremely important is the confirmed date of the developing of the area at the upper terrace of the Borovitsky Hill between the Spasskie and the Nikolskie Gates of the Kremlin that is the last quarter–end of the 12th century. This dating of the most ancient layers near the Spasskie Gates has been given earlier in the scientific literature, based on the materials of thirty years old archaeological observations. During the works of 2015–2018, the conclusion of the Moscow Kremlin Museums archaeologists regarding the absence of rapture between pre-Mongolian and post-Mongolian layers was confirmed. This fact tells us that the city had rapidly recovered after invasion of Batu Khan. Such a character of living deposits of early Moscow on the territory of the Borovitsky Hill has previously been noted both in scientific reports and publications of the employees of the Moscow Kremlin Museums.
Naturally, the excavations, organized by the Institute of Archaeology of the Russian Academy of Science and that had been continuing for several years (2015–2020), gave an opportunity not only to study the fullness of the cultural layer but also to make a more thorough research of the composition of ancient soils, flora and fauna of Moscow in the late 12th–13th centuries. According to the materials of the excavations in the eastern part of the Kremlin, the conclusions about the environment, where the city had been forming in the first centuries of its existence, were sufficiently enlarged with the help of paleosol and archaeobotany methods. The research results of archeozoological remains (animal bones) are of great importance. They let us prove not only the urban character of Moscow from its first decades but also reconstruct the food ration of ancient Muscovites.

Indicatively, the eastern material culture had an influence in Moscow during the apanage period. In the middle of the 13th–14th centuries, Russian manuscripts mark regular visits of Moscow princes to the Golden Horde as well as arrivals of the Golden Horde functionaries and merchants to Ancient Rus. This fact explains the presence of expensive eastern tableware (its fragments) on the territory of the Kremlin in large quantities. However, the excavations on the territory of the former Chudov Monastery (eastern part of the fortress) did not prove the famous legend about its foundation on the place of 'Tatar court' in Moscow. The uprise of this myth has a thorough explanation in one of our publications, based on the archaeological data.
The results of archaeological researches of the recent years on the territory of the historical core of Russia's capital provide additional information to the source database for further study of the past of Moscow and its Kremlin.

Il. 13. Vase stem. China, the 15th сentury. Porcelain
In the history of studies devoted to the Kremlin past, a historical core of Moscow, the archaeological period occupies not so much time. In the 19th century– the first part of the 20th century, historians had to work mainly with accidental findings, made on the territory of the medieval fortress and revealed during excavations or construction works. Only in the 1959–1960s archaeologists started to make observations in Kremlin and carry out archaeological excavations, which gave an opportunity to solve many disputable questions in the history of Moscow, such as – to define the time of city foundation, to trace the way the city defense system had been formed, territory expansion, change of its social topography in the Middle Ages. There are many books devoted to the history of Moscow, but editions based on archaeological materials are quite rare. Meanwhile, only material sources let us reconstruct the building and design of the city centre and revive the everyday life of medieval Muscovites. These material antiques are particularly important for studying of Moscow's first centuries, while its early period has a weak reflection in the written sources – the Russian chronicles.
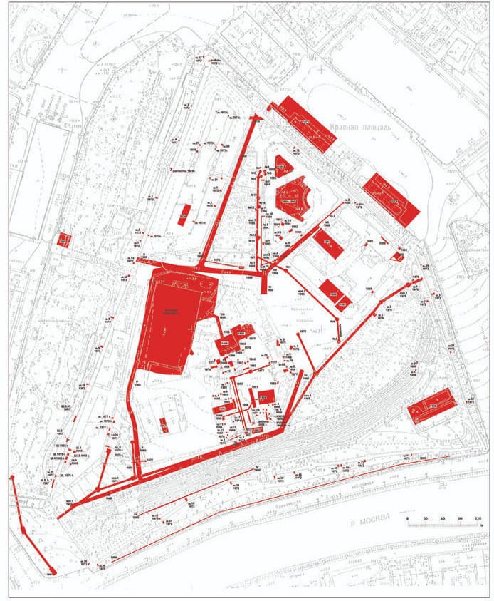
At the turn of the 1970–1980s, the archaeological survey and small by the square excavations were made on the cape of the Borovitsky Hill, where the Kremlin is situated. Thanks to this and data of the previous decade, it became possible to reveal the main territory of ancient Moscow in the middle of the 12th–13th centuries and the scheme of fortification development. However, more ambitious archaeological works on the territory of the Kremlin were started in 1990. Our outline is devoted to the results of these works for the past 30 years. Summary of these data for such a long period of time is, without doubt, of intense interest, since similar analysis referred to the surveys of 1959–2001. (il. 1)
Materials of the 1990–2010s can be divided not only by the years but also by territory.
In the 1990s the archaeologists of the Moscow Kremlin Museums got access to the eastern part of the fortress, between Spasskie and Nikolskie Gates. Earlier this part, occupied by the government buildings, had been unavailable for them. Certain observations allowed understanding the thickness of cultural layer on this territory that reached 5 meters.
Archaeological works of the 1990s let us make very interesting conclusions regarding ancient historical and social topography of the Kremlin's eastern part at the end of 12th–13th centuries. Although later development area had destroyed traces of residential and household buildings of that period, some of the remains were still studied. Many of them were ruined during fires, layers of which are preserved in very good condition and reported during the observations. One of the heaviest layers dates back to the first half of the 13th century and, undoubtedly, is connected to the ruination of a seized small town, which Moscow had been in 1238, by the army of Batu Кhan – grandson of Genghis Khan.
The square of Moscow at the upper terrace of the Borovitsky Hill was not more than 14 hectares at that time. (il. 2)
© 1997-2020 ФГБУК «Государственный историко-культурный
музей-заповедник «Московский Кремль»